Útočisko medzi horami: Jedna z "dvojičiek" dýcha pokojom a drevom, druhá je ideálom pre dynamického muža
1/24Aj apartmán Monolit sa môže pochváliť bezúchytkovou kuchynskou linkou a veľkým jedálenským stolom. FOTO: Vladimír Vašut
2/24Apartmán Wood – drevená podlaha tu prechádza do obkladov na stenách a stropoch, čo vytvára príjemný pocit bezpečia a pohody. FOTO: Vladimír Vašut
3/24Apartmán Wood - jeho majiteľ uprednostňuje pokoj, útulnosť a pohodu. FOTO: Vladimír Vašut
4/24Apartmán Wood – výrazné kontrasty medzi drevom a čiernymi detailmi tu doplnili autori jemným osvetlením z drôtikov. FOTO: Vladimír Vašut
5/24Apartmán Wood - dlhá kuchynská linka ponúka dostatok úložného priestoru aj všetky potrebné spotrebiče. FOTO: Vladimír Vašut
6/24Apartmán Wood - posuvné presklené dvere v kovovom ráme oddeľujú obytný priestor od možného ruchu z okolitých apartmánov. FOTO: Vladimír Vašut
7/24Apartmán Wood - posuvné presklené dvere v kovovom ráme oddeľujú obytný priestor od možného ruchu z okolitých apartmánov. FOTO: Vladimír Vašut
8/24Apartmán Wood - drevená podlaha prechádza do obkladov na stenách a stropoch, čo vytvára príjemný pocit bezpečia a pohody. FOTO: Vladimír Vašut
9/24Apartmán Wood – aj spálňu prestúpilo drevo nielen na podlahe, ale aj na stenách a na strope. FOTO: Vladimír Vašut
10/24Apartmán Wood – aj spálňu prestúpilo drevo nielen na podlahe, ale aj na stenách a na strope. FOTO: Vladimír Vašut
11/24Apartmán Wood – aj spálňu prestúpilo drevo nielen na podlahe, ale aj na stenách a na strope. FOTO: Vladimír Vašut
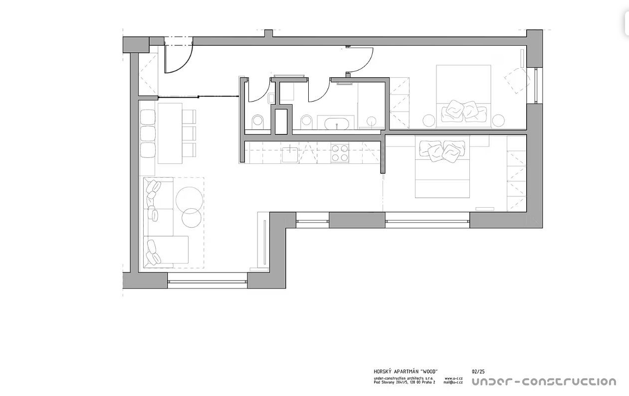
12/24Pôdorys apartmánu Wood FOTO: Under-construction architects
13/24Apartmán Monolit je určený pre majiteľov, ktorý má rád minimalizmus, betón, kov, ale aj vôňu dreva. FOTO: Vladimír Vašut
14/24Apartmán Monolit je určený pre majiteľov, ktorý má rád minimalizmus, betón, kov, ale aj vôňu dreva. Preto si architekti „dovolili“ ponechať na strope len pohľadový betón. FOTO: Vladimír Vašut
15/24Apartmán Monolit - textilná kabeláž svetiel a kovové konštrukcie harmonizujúce s príjemnými prírodnými drevenými obkladmi a prvkami. FOTO: Vladimír Vašut
16/24Apartmán Monolit - textilná kabeláž svetiel a kovové konštrukcie harmonizujúce s príjemnými prírodnými drevenými obkladmi a prvkami. FOTO: Vladimír Vašut
17/24Apartmán Monolit - kontrast dreva a čiernych prvkov pôsobí osviežujúcim dojmom. FOTO: Vladimír Vašut
18/24Apartmán Monolit - textilná kabeláž na betónovom strope pôsobí efektným dojmom. FOTO: Vladimír Vašut
19/24Apartmán Monolit - textilná kabeláž na betónovom strope pôsobí efektným dojmom. FOTO: Vladimír Vašut
20/24Apartmán Monolit - pohľad do spálne FOTO: Vladimír Vašut
21/24Apartmán Monolit - odkladná vešiaková stena vo vstupnom priestore. FOTO: Vladimír Vašut
22/24Apartmán Monolit - spálňa ponúka krásny výhľad na okolité hory. FOTO: Vladimír Vašut
23/24Apartmán Monolit - drevený obklad stien priestor spálne zatepľuje a zútulňuje. FOTO: Vladimír Vašut
24/24Pôdorys apartmánu Monolit FOTO: Under-construction architects